บริษัท ธนเสฏฐ์เจริญทรัพย์ จำกัด รับสร้างบ้านทั่วภาคอีสาน รับสร้างบ้าน รับเหมาก่อสร้าง ต่อเติมบ้าน ด้วยประสบการณ์และทีมงานมืออาชีพ คุณแจ๊ค Tel : 088-498-3399, 097-987-9361 Line : homeubon

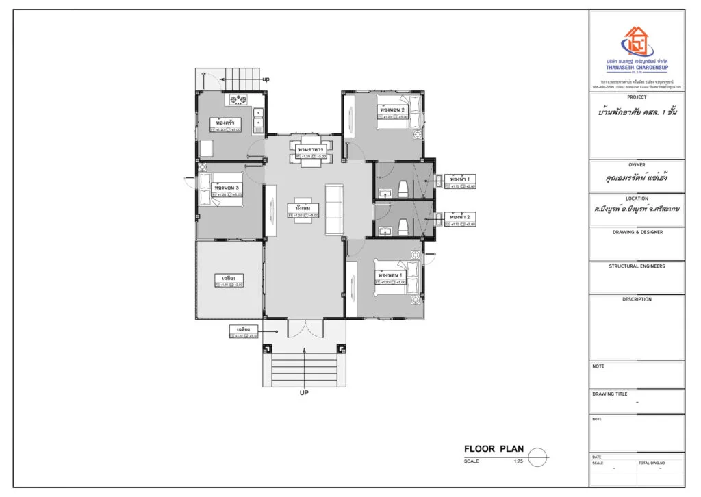
ส่งมอบบ้าน คุณอมรรัตน์ (ต.บึงบูรพ์ อ.บึงบูรพ์ จ.ศรีสะเกษ)

ส่งมอบบ้าน คุณอมรรัตน์ (ต.บึงบูรพ์ อ.บึงบูรพ์ จ.ศรีสะเกษ)
ขอขอบคุณ ที่ไว้วางใจรับสร้างบ้านที่ศรีสะเกษกับเรา #สร้างบ้านทั่วภาคอีสาน

หน้าที่ของเราคือประกอบฝันของคุณให้เป็นจริงและนี่คือผลงานที่ผ่านมา

Project 🎪 บ้านคุณอมรรัตน์ แซ่เฮ้ง

Location 📌 ต.บึงบูรพ์ อ.บึงบูรพ์ จ.ศรีสะเกษ

ทางบริษัท ธนเสฎฐ์เจริญ จำกัด บริษัท รับสร้างบ้านศรีสะเกษ ขอขอบคุณ คุณ อมรรัตน์ ตำบล บึงบูรพ์ อำเภอ บึงบูรพ์ จังหวัด ศรีสะเกษ ที่เลือกใช้บริการรับสร้างบ้านกับเรา โดยมาพร้อมชุดเค้าเตอร์ครัว พร้อมซิงค์เตาแก๊ส เครื่องดูดควัน และใช้ท็อปแกรนิตแท้ เท่านั้น

ส่งมอบบ้าน คุณอมรรัตน์  (ต.บึงบูรพ์ อ.บึงบูรพ์ จ.ศรีสะเกษ)
ส่งมอบบ้าน คุณอมรรัตน์ (ต.บึงบูรพ์ อ.บึงบูรพ์ จ.ศรีสะเกษ)
ส่งมอบบ้าน คุณอมรรัตน์  (ต.บึงบูรพ์ อ.บึงบูรพ์ จ.ศรีสะเกษ)
ส่งมอบบ้าน คุณอมรรัตน์ (ต.บึงบูรพ์ อ.บึงบูรพ์ จ.ศรีสะเกษ)
ส่งมอบบ้าน คุณอมรรัตน์  (ต.บึงบูรพ์ อ.บึงบูรพ์ จ.ศรีสะเกษ)
ส่งมอบบ้าน คุณอมรรัตน์ (ต.บึงบูรพ์ อ.บึงบูรพ์ จ.ศรีสะเกษ)
ส่งมอบบ้าน คุณอมรรัตน์  (ต.บึงบูรพ์ อ.บึงบูรพ์ จ.ศรีสะเกษ)
ส่งมอบบ้าน คุณอมรรัตน์ (ต.บึงบูรพ์ อ.บึงบูรพ์ จ.ศรีสะเกษ)
ส่งมอบบ้าน คุณอมรรัตน์  (ต.บึงบูรพ์ อ.บึงบูรพ์ จ.ศรีสะเกษ)
ส่งมอบบ้าน คุณอมรรัตน์ (ต.บึงบูรพ์ อ.บึงบูรพ์ จ.ศรีสะเกษ)
ส่งมอบบ้าน คุณอมรรัตน์  (ต.บึงบูรพ์ อ.บึงบูรพ์ จ.ศรีสะเกษ)
ส่งมอบบ้าน คุณอมรรัตน์ (ต.บึงบูรพ์ อ.บึงบูรพ์ จ.ศรีสะเกษ)
ส่งมอบบ้าน คุณอมรรัตน์  (ต.บึงบูรพ์ อ.บึงบูรพ์ จ.ศรีสะเกษ)
ส่งมอบบ้าน คุณอมรรัตน์ (ต.บึงบูรพ์ อ.บึงบูรพ์ จ.ศรีสะเกษ)
ส่งมอบบ้าน คุณอมรรัตน์  (ต.บึงบูรพ์ อ.บึงบูรพ์ จ.ศรีสะเกษ)
ส่งมอบบ้าน คุณอมรรัตน์ (ต.บึงบูรพ์ อ.บึงบูรพ์ จ.ศรีสะเกษ)
ส่งมอบบ้าน คุณอมรรัตน์  (ต.บึงบูรพ์ อ.บึงบูรพ์ จ.ศรีสะเกษ)
ส่งมอบบ้าน คุณอมรรัตน์ (ต.บึงบูรพ์ อ.บึงบูรพ์ จ.ศรีสะเกษ)

ขอขอบคุณ คุณอมรรัตน์ (เจ้าของบ้าน)