ส่งมอบบ้าน คุณพิมลพรรณ – ผลงานรับสร้างบ้าน อ.เมืองหนองคาย จ.หนองคาย

ขอแสดงความยินดีอย่างยิ่งกับคุณพิมลพรรณและครอบครัว สำหรับบ้านหลังใหม่ ณ อำเภอเมืองหนองคาย จังหวัดหนองคายหลังนี้ สร้างโดยทีมงาน บริษัท รับสร้างบ้านหนองคาย
หน้าที่ของเราคือประกอบฝันของคุณให้เป็นจริง
ขอขอบคุณ เจ้าของบ้าน
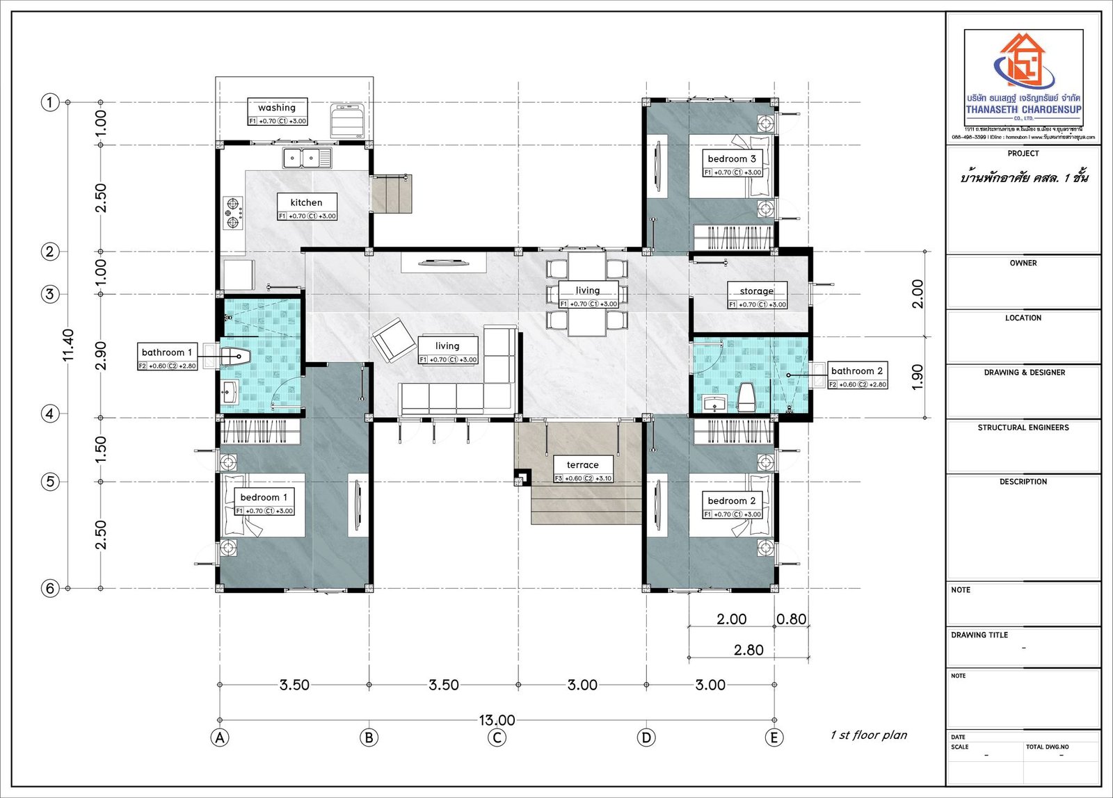
บ้านคุณพิมลพรรณ
ฟังก์ชั่น
3 ห้องนอน 2 ห้องน้ำ
สถานที่
อำเภอเมืองหนองคาย จังหวัดหนองคาย
-
ผลงานรับสร้างบ้าน จังหวัดหนองคาย
ธนเสฏฐ์เจริญ์ทรัพย์ รับสร้างบ้าน : นครพนม บึงกาฬ สกลนคร หนองคาย
ตัวอย่างผลงานรับสร้างบ้านหนองคาย
คุณพิมลพรรณ อ.เมืองหนองคาย จ.หนองคาย
ทีมงาน รับเหมาก่อสร้างบ้าน หนองคาย สร้างบ้านตามฝัน ออกแบบฟรี ของเราทุกคนรู้สึกเป็นเกียรติและภาคภูมิใจอย่างยิ่งที่ได้มีส่วนร่วมในการสร้าง “บ้านในฝัน” ให้กลายเป็นความจริง เราหวังว่าบ้านหลังนี้จะเป็นจุดเริ่มต้นของความสุข ความอบอุ่น และเต็มไปด้วยความทรงจำที่ดีของทุกคนในครอบครัวตลอดไป
















